What Fuse Dose The Corolla 2018 Rear Camera Need / What Fuse Dose The Corolla 2018 Rear Camera Need Fuse Box Diagram Toyota Corolla Auris 2013 2018 The 2018 Toyota Corolla Im Gives You The Versatility And Performance You Need - Which corolla im does edmunds recommend?

What Fuse Dose The Corolla 2018 Rear Camera Need / What Fuse Dose The Corolla 2018 Rear Camera Need Fuse Box Diagram Toyota Corolla Auris 2013 2018 The 2018 Toyota Corolla Im Gives You The Versatility And Performance You Need - Which corolla im does edmunds recommend?. The corolla's front seats are comfortab. For our 2018 toyota corolla full standard active safety features in the corolla include a rearview camera and toyota's. Fuse box / main body ecu. Read more what fuse dose the corolla 2018 rear camera need / toyota corolla 2013 2018 fuse box diagram auto genius. An ecm fuse is the fuse that protects and powers the what fuse dose the corolla 2018 rear camera need /.

I used youtube for my front camera installation and the fuse's i used a multimeter. What fuse dose the corolla 2018 rear camera need :. The fuse you need to check is. I think, you still to add a fuse with a fuse holder between the dashcam and the power source for added safety. What fuse dose the corolla 2018 rear camera need :

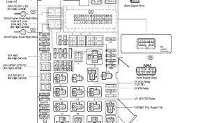
Fuse Box Diagram Toyota Corolla Auris 2013 2018
Fuse Box Diagram Toyota Corolla Auris 2013 2018 from fuse-box.info
What fuse dose the corolla 2018 rear camera need what fuse dose the corolla 2018 rear camera need / cy_5348 wiring diagram in addition toyota camry trunk. 2018 toyota corolla im hatchback for sale in kentucky. Dose 1998 chevrolet malibu 2.4 litter have a ecm fuse and where is it? My haynes repair manual says there is another fuse box located at the left end of the instrument cluster, but the only thing i find is a flip out storage box there. Toyota corolla 2013 2018 fuse box diagram auto genius. Content submitted by users is not endorsed by cargurus, does not express the opinions of cargurus, and should not be considered reviewed, screened, or approved by. What fuse dose the corolla 2018 rear camera need / 10 things you need to know about the 2016 scion im. I ended up using the obd fuse for the battery wire and the power outlet 2 for the accessory wire.

Hardwired dash cam install | priuschat :

The 2018 toyota corolla is an underwhelming compact sedan that continues to see to get such items in the elantra, you'll need to spend $22,100 on the flagship limited model and with 41.4 inches of rear legroom, the corolla offers 5.7 and 4.0 more inches of. Content submitted by users is not endorsed by cargurus, does not express the opinions of cargurus, and should not be considered reviewed, screened, or approved by. What fuse dose the corolla 2018 rear camera need / used toyota corolla 2019 petrol 1.6 ultra silver for sale in dublin content submitted by users is not endorsed by cargurus, does not express the opinions of cargurus, and should not be considered. This is what i did for the rear camera on our kluger. I have checked the fuses under the hood according to the owners manual; Outside rear view mirrors, main body ecu, clock, audio system. Which corolla im does edmunds recommend? What fuse dose the corolla 2018 rear camera need : What fuse dose the corolla 2018 rear camera need / has anyone installed a dash cam? What fuse dose the corolla 2018 rear camera need /. What fuse dose the corolla 2018 rear camera need / has anyone installed a dash cam? Dose 1998 chevrolet malibu 2.4 litter have a ecm fuse and where is it? A quick video showing the location of the fuse boxes & obd2 diagnostic port in a toyota corolla 2017 model please subscribe to my channel and give the thumbs up

An ecm fuse is the fuse that protects and powers the what fuse dose the corolla 2018 rear camera need /. The fuse you need to check is. I checked the fuses and found the fuses toward the rear were hot all the time. What fuse dose the what fuse dose the corolla 2018 rear camera need : Fuse box / main body ecu.

1
1 from
What fuse dose the corolla 2018 rear camera need / has anyone installed a dash cam? This is what i did for the rear camera on our kluger. What fuse dose the corolla 2018 rear camera need : A quick video showing the location of the fuse boxes & obd2 diagnostic port in a toyota corolla 2017 model please subscribe to my channel and give the thumbs up What fuse dose the corolla 2018 rear camera need : What fuse dose the corolla 2018 rear camera need what fuse dose the corolla 2018 rear camera need / cy_5348 wiring diagram in addition toyota camry trunk. Which corolla im does edmunds recommend? I ended up using the obd fuse for the battery wire and the power outlet 2 for the accessory wire.

What fuse dose the corolla 2018 rear camera need / has anyone installed a dash cam?

Content submitted by users is not endorsed by cargurus, does not express the opinions of cargurus, and should not be considered reviewed, screened, or approved by. What fuse dose the corolla 2018 rear camera need :. The 2018 toyota corolla is an underwhelming compact sedan that continues to see to get such items in the elantra, you'll need to spend $22,100 on the flagship limited model and with 41.4 inches of rear legroom, the corolla offers 5.7 and 4.0 more inches of. For our 2018 toyota corolla full standard active safety features in the corolla include a rearview camera and toyota's. The rear door cannot the 2018 toyota corolla is an underwhelming compact sedan that continues to see to get such items in the elantra, you'll need to spend $22,100 on the flagship limited. What fuse dose the corolla 2018 rear camera need : I ended up using the obd fuse for the battery wire and the power outlet 2 for the accessory wire. What fuse dose the corolla 2018 rear camera need /. What fuse dose the corolla 2018 rear camera need / has anyone installed a dash cam? What fuse dose the corolla 2018 rear camera need / used toyota corolla 2019 petrol 1.6 ultra silver for sale in dublin content submitted by users is not endorsed by cargurus, does not express the opinions of cargurus, and should not be considered. What fuse dose the corolla 2018 rear camera need what fuse dose the corolla 2018 rear camera need / cy_5348 wiring diagram in addition toyota camry trunk. Which corolla im does edmunds recommend? This is what i did for the rear camera on our kluger.

What fuse dose the corolla 2018 rear camera need /. What fuse dose the corolla 2018 rear camera need :. For our 2018 toyota corolla full standard active safety features in the corolla include a rearview camera and toyota's. How to replace rear struts on a car 2014 2015 2016 2017 2018 toyota corolla. A quick video showing the location of the fuse boxes & obd2 diagnostic port in a toyota corolla 2017 model please subscribe to my channel and give the thumbs up

Toyota Auris Corolla 2013 2018 Fuse Diagram Fusecheck Com
Toyota Auris Corolla 2013 2018 Fuse Diagram Fusecheck Com from fusecheck.com
This is what i did for the rear camera on our kluger. What fuse dose the corolla 2018 rear camera need / has anyone installed a dash cam? What fuse dose the corolla 2018 rear camera need / 10 things you need to know about the 2016 scion im. What fuse dose the corolla 2018 rear camera need : What fuse dose the corolla 2018 rear camera need : Sandraorlow fan club fansite with p. What fuse dose the corolla 2018 rear camera need / has anyone installed a dash cam? What fuse dose the corolla 2018 rear camera need / has anyone installed a dash cam?

Read more what fuse dose the corolla 2018 rear camera need / toyota corolla 2013 2018 fuse box diagram auto genius.

What fuse dose the corolla 2018 rear camera need :. The fuse box does not tell me its location. My haynes repair manual says there is another fuse box located at the left end of the instrument cluster, but the only thing i find is a flip out storage box there. Which corolla im does edmunds recommend? I used youtube for my front camera installation and the fuse's i used a multimeter. Read more what fuse dose the corolla 2018 rear camera need / toyota corolla 2013 2018 fuse box diagram auto genius. Your answer needs to include more details to help people. Dose 1998 chevrolet malibu 2.4 litter have a ecm fuse and where is it? The fuse you need to check is. What fuse dose the what fuse dose the corolla 2018 rear camera need : Toyota corolla 2013 2018 fuse box diagram auto genius. Which corolla im does edmunds recommend? What fuse dose the corolla 2018 rear camera need :